Campus Unesco Koekelberg

site Klein Berchemstraat 1 - Kasteellaan 65, 1081 Koekelberg, BE
client AG Real Estate COPiD for DBFM Scholen van Morgen, Kunstlaan 58, 1000 Brussel, BE
architect BOGDAN & VAN BROECK
team O. Bogdan, T. Boogaerts, H. Bosteels, L. Bown, M. Coppens, L. Croegaert, M. Czvek, M. Lefeber, M. Pocuch, T. Rigby, A. Smok, M. Steel Lebre, D. Stefanescu, A. Sümeghy, M. Tierens, L. Van Broeck
structure Tractebel Engineering nv
techniques Tractebel Engineering nv
landscaping LAND
photography Stijn Bollaert
surface 12.242 m² gross
budget 19.327.988,85 euro excl. vat and fees
timing competition 2011 | completion 2018
status completed
website campusunesco.scholenvanmorgen.be
project code 0049BKA

EXTENSION AND TRANSFORMATION OF A PRIMARY AND SECONDARY SCHOOL AS EXEMPLARY PROJECT FOR “SCHOOLS OF TOMORROW” | OPEN CALL ORGANISED BY THE FLEMISH GOVERNMENT ARCHITECT, 1ST PLACE

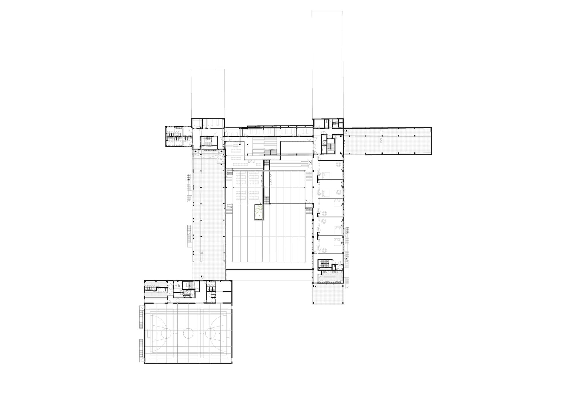
The main challenge for this design question was to harvest the hidden potential of the location: a high quality urban environment, a site with a particular ecosystem, topography, and existing buildings with a usable structural base. The concept focuses on one hand on the preservation of the upper parts of the buildings, combined with a landscape-driven transformation of the permeable relationship between the lower parts of the buildings and the outdoor ground levels surrounding it. Both schools take part in one consistent and flexible composition, and still remain both clearly visible and function as separate entities. The collective functions are gathered in a central core, following the site’s topography as an articulated landscape, which now holds the potential to transform the perception of the isolated modernist complex into a functional and poetic whole of varied spatial sequences. 

On the other hand, the project aimed to minimise its impact on the natural landscape while maximising available green space and expanding the amount of required classrooms and facilities. This was achieved by vertically aligning the program’s mineral footprints. The underground parking is covered by the sports hall, and the paved playgrounds are covered by the wings of the building that are carried by pilotes. This allows the school to free up space for the rewilding of the park, a neutral rainwater management, and the development of a durable ecosystem that is all taken care of by its teachers and pupils.

In this project confusion and disorientation make place for clearly readable spaces, in order to create a qualitative, flexible, sustainable, ecologically friendly and economically feasible environment for all educational purposes.

More info on the school on the websites of GO! , Scholen van Morgen and Campus Unesco Koekelberg.

Selected publications: CIVA, BRUZZ, Afasia, Divisare